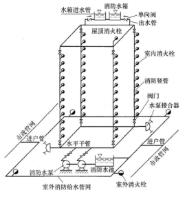
某高层办公楼,建筑高度为 32m,内走廊为“一”字形,设置两座防烟楼梯间,其前室内入口的中心线间距为 15m。走廊两端的袋型走道长度为 3m,走廊两侧房间进深均为 6m。该办公楼每层设置的室内消火栓竖管数量不应少于( )。
注意本题问的是消火栓竖管,并不是消火栓。
《消防给水及消火栓系统技术规范》GB50974-2014
8.1.2 下列消防给水应采用环状给水管网:
①向两栋或两座及以上建筑供水时;
②向两种及以上水灭火系统供水时;
③采用设有高位消防水箱的临时高压消防给水系统时;
④向两个及以上报警阀控制的自动水灭火系统供水时;本条规定是为了保证消防给水的可靠性。
8.1.5 室内消火栓系统管网应布置成环状,当室外消火栓设计流量不大于 20L/s,且室内消火栓不超过 10 个时,除本规范第 8.1.2 条情况外,可布置成枝状


某酒精(沸点是78.4℃,熔点是-114.3℃,闪电为13℃)合成厂房,地上1 层,建筑高度为5.7m,总建筑面积为4000 ㎡,划分为一个防火分区,建筑平面几何外形为长方形(长边为80m,短边为60m),按一个空间设计,承重结构采用砼框架结构,耐火等级一级,屋顶形式为平屋顶并全部采用单位质量不超过60kg/㎡的不燃轻质屋面板作为泄压设施。该厂房按有关国家工程建设消防技术标准配置了消防设施及器材。
厂房内每个防火分区或一个防火分区内的每个楼层可设置1 个安全出口的条件有( )。
某酒精(沸点是78.4℃,熔点是-114.3℃,闪电为13℃)合成厂房,地上1 层,建筑高度为5.7m,总建筑面积为4000 ㎡,划分为一个防火分区,建筑平面几何外形为长方形(长边为80m,短边为60m),按一个空间设计,承重结构采用砼框架结构,耐火等级一级,屋顶形式为平屋顶并全部采用单位质量不超过60kg/㎡的不燃轻质屋面板作为泄压设施。该厂房按有关国家工程建设消防技术标准配置了消防设施及器材。
关于厂房内任一点至最近安全出口的直线距离,下列说法正确的是( )。
某酒精(沸点是78.4℃,熔点是-114.3℃,闪电为13℃)合成厂房,地上1 层,建筑高度为5.7m,总建筑面积为4000 ㎡,划分为一个防火分区,建筑平面几何外形为长方形(长边为80m,短边为60m),按一个空间设计,承重结构采用砼框架结构,耐火等级一级,屋顶形式为平屋顶并全部采用单位质量不超过60kg/㎡的不燃轻质屋面板作为泄压设施。该厂房按有关国家工程建设消防技术标准配置了消防设施及器材。
关于泄压设施,下列说法正确的是( )。
某酒精(沸点是78.4℃,熔点是-114.3℃,闪电为13℃)合成厂房,地上1 层,建筑高度为5.7m,总建筑面积为4000 ㎡,划分为一个防火分区,建筑平面几何外形为长方形(长边为80m,短边为60m),按一个空间设计,承重结构采用砼框架结构,耐火等级一级,屋顶形式为平屋顶并全部采用单位质量不超过60kg/㎡的不燃轻质屋面板作为泄压设施。该厂房按有关国家工程建设消防技术标准配置了消防设施及器材。
关于厂房地面的设置,下列说法正确的是( )。
某酒精(沸点是78.4℃,熔点是-114.3℃,闪电为13℃)合成厂房,地上1 层,建筑高度为5.7m,总建筑面积为4000 ㎡,划分为一个防火分区,建筑平面几何外形为长方形(长边为80m,短边为60m),按一个空间设计,承重结构采用砼框架结构,耐火等级一级,屋顶形式为平屋顶并全部采用单位质量不超过60kg/㎡的不燃轻质屋面板作为泄压设施。该厂房按有关国家工程建设消防技术标准配置了消防设施及器材。
关于厂房的防爆泄压,下列说法正确的是( )。
某酒精(沸点是78.4℃,熔点是-114.3℃,闪电为13℃)合成厂房,地上1 层,建筑高度为5.7m,总建筑面积为4000 ㎡,划分为一个防火分区,建筑平面几何外形为长方形(长边为80m,短边为60m),按一个空间设计,承重结构采用砼框架结构,耐火等级一级,屋顶形式为平屋顶并全部采用单位质量不超过60kg/㎡的不燃轻质屋面板作为泄压设施。该厂房按有关国家工程建设消防技术标准配置了消防设施及器材。
关于安全疏散,下列说法正确的是( )。
某酒精(沸点是78.4℃,熔点是-114.3℃,闪电为13℃)合成厂房,地上1 层,建筑高度为5.7m,总建筑面积为4000 ㎡,划分为一个防火分区,建筑平面几何外形为长方形(长边为80m,短边为60m),按一个空间设计,承重结构采用砼框架结构,耐火等级一级,屋顶形式为平屋顶并全部采用单位质量不超过60kg/㎡的不燃轻质屋面板作为泄压设施。该厂房按有关国家工程建设消防技术标准配置了消防设施及器材。
关于平面布置,下列说法正确的是( )。
某酒精(沸点是78.4℃,熔点是-114.3℃,闪电为13℃)合成厂房,地上1 层,建筑高度为5.7m,总建筑面积为4000 ㎡,划分为一个防火分区,建筑平面几何外形为长方形(长边为80m,短边为60m),按一个空间设计,承重结构采用砼框架结构,耐火等级一级,屋顶形式为平屋顶并全部采用单位质量不超过60kg/㎡的不燃轻质屋面板作为泄压设施。该厂房按有关国家工程建设消防技术标准配置了消防设施及器材。
甲类厂房与其他厂房、民用建筑等之间的防火间距符合《建筑设计防火规范》规定的有( )。
某酒精(沸点是78.4℃,熔点是-114.3℃,闪电为13℃)合成厂房,地上1 层,建筑高度为5.7m,总建筑面积为4000 ㎡,划分为一个防火分区,建筑平面几何外形为长方形(长边为80m,短边为60m),按一个空间设计,承重结构采用砼框架结构,耐火等级一级,屋顶形式为平屋顶并全部采用单位质量不超过60kg/㎡的不燃轻质屋面板作为泄压设施。该厂房按有关国家工程建设消防技术标准配置了消防设施及器材。
下列生产属于甲类生产的是( )。
某市新建一座综合性公共建筑,一级耐火等级,平屋面面层标高为31.4m,女儿墙高度为0.6m ,室外设计地面标高为-0.6m,首层室内地面标高为0.9m。该建筑按照国家消防工程技术标准设置了全建筑统一的消防设施,并全部采用不燃和难燃材料进行装修。该建筑整体呈 L 型布置,东侧沿街长度为70m ,南侧沿街长度为150m,沿南、北两侧设置了消防车道,沿东、北侧连续设置了长度为150m 的消防车登高救援操作场地,并在登高救援操作场地对应的建筑外墙上间隔20m 设置有符合规范要求的消防救援窗。综合楼内地上一至三层为综合商场,经营服饰、鞋帽、箱包等商品,每层层高为5m,每层建筑面积为6000 ㎡。地上四至八层整体设置为酒店式公寓,每层建筑面积为1000 ㎡,酒店部分在地上一层课通过专用电梯直达,并设置有独立的疏散出口。综合楼东侧和北侧设置有高12m、进深4m 的附属裙房,并采用防火墙同主题建筑完全分隔,该裙房共地上3 层,地上一层设置为敞开式接待展示中心,地上二至三层为带卡拉OK 功能的商务娱乐会所,主体建筑及裙房均按国家规范要求设计了相应的防火分区、疏散设施。建筑保温材料整体采用外墙保温系统(无空腔),所有位置顶棚均采用轻钢龙骨纸面石膏板吊顶、所有房间、包厢内的墙面均采用彩色阻燃人造板进行装饰、商场、接待中心内底板采用大理石装修、酒店式公寓、商务会所内底板采用PVC 卷材底板装修。
关于建筑装饰材料,以下说法中正确的是( )。