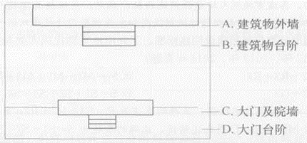
根据《城市规划基本术语标准》,建筑红线应该划在( )处。(2011年真题)

根据《城市规划基本术语标准》第5.0.12条规定,建筑红线为城市道路两侧控制沿街建筑物或构筑物(如外墙、台阶等)靠临街面的界线,又称建筑控制线。它可与道路红线重合,也可退于道路红线之后,但绝不许超越道路红线,在建筑红线以外不允许建任何建筑物。
中国明清江南私家园林布局的特征包括()
行道树的最小布置宽度应以保证树种生长的需要为准,一般为1.5m,相当于树穴的()
以下各建筑中()是伊斯兰教建筑的代表。
关于城市燃气输配管道的压力表述中,正确的有()
以下属于种群特征的是()
生态系统的成分,不论是陆地还是水域,都可分为生物环境与非生物环境、生产者、消费者和分解者四种基本成分,其中()是地球生命的支持系统。
当干路设计车速为50km/h时,互通式立交最小净距值为()
将固体废物填入确定的谷地、平地或废矿坑等,然后用机械压实后覆土,使其发生物理、化学、生物等变化,分解有机物质,达到减容化和无害化的目的。这是固体废物处理中的()方法。
关于建筑石膏性质的表述,正确的是()
根据建设部[2003]84号文件中《建筑工程设计文件编制深度规定》,大中城市建筑设计的阶段_般不包括()