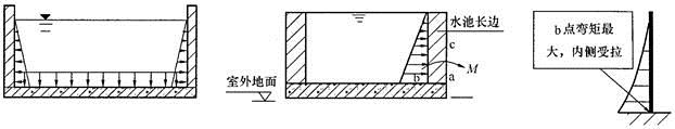
如所示,某室外砌体结构矩形水池,水池足够长,当超量蓄水时,水池长边中部墙体首先出现裂缝的部位为下列哪处?( )

如所示,矩形水池蓄水时,水池长边相当于一个竖直的悬臂结构,承受倒三角形分布的水压力作用,使池壁产生内侧受拉的弯矩,最大值在底部b点。一旦b点的弯矩正应力大于混凝土抗拉强度,就会最先在b处出现水平裂缝。

如图外伸梁,B点支座右侧截面剪力为( )。

全部消除液化土的方法,不包括以下哪项?( )
有关地基处理的作用,错误的是( )。
钢筋混凝土基础,通过地基的承载力计算,可以确定( )。
下列图中,存在地基稳定性隐患的是( )。
?A.
?B.
?C.
?D.
图示悬臂式挡土墙,当抗滑移验算不足时,在挡土墙埋深不变的情况下,下列措施最有效的是( )。

8度抗震区,4层幼儿园,不得采用( )结构型式。
关于抗震设防烈度的高层剪力墙结构房屋采用短肢剪力端的说法,正确的是( )。
关于剪力墙结构设计,正确的是( )。
下列结构体系中,高层建筑最大高宽比限值最大的是( )。