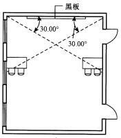
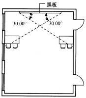
中学教室水平视角的含义,下列何者为正确?( )
《中小学校建筑设计规范》第5.2.2第7条,前排边座座椅与黑板远端形成的水平视角不应小于30°。
建设项目的实际造价是( )。
砌体结构的圈梁被门窗洞口截断时,应在洞口上部增设相同的附加圈梁,其搭接长度不应小于附加圈梁与原圈梁中到中垂直距离的2倍,且不能小于下列哪一个数值?( )







建筑物共有四个抗震设防类别,下列哪一类建筑的分类原则是正确的?( )