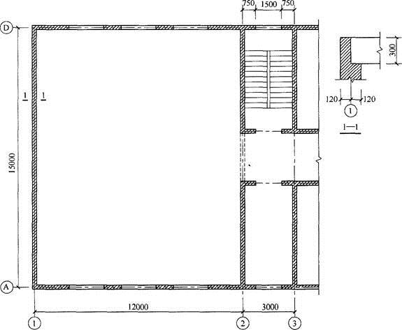
方案初期,某四层砌体结构房屋顶层局部平面布置图如图所示,层高均为3.6m。墙体采用MU10级烧结多孔砖、M5级混合砂浆砌筑。墙厚为240mm。屋面板为预制预应力空心板上浇钢筋混凝土叠合层,屋面板总厚度为300mm,简支在①轴和②轴墙体上,支承长度为120mm。屋面永久荷载标准值为12kN/m2,活荷载标准值为0.5kN/m2。砌体施工质量控制等级为B级;抗震设防烈度为7度,设计基本地震加速度为0.1g。[2013年真题]

5.试问,突出屋面的楼梯间最少应设置的构造柱数量,与下列何项数值最为接近?( )
根据《建筑抗震设计规范》(GB 50011—2010)第7.3.1条表7.3.1可知,楼梯间四角,楼梯段上下端对应的墙体处,应设置构造柱,共8个;根据第7.3.8条第4款规定,突出屋面的楼梯间,构造柱应伸到顶部。故突出屋面的楼梯间也应设置8个构造柱才能保证稳定。由此可知,D项数值最为接近。










