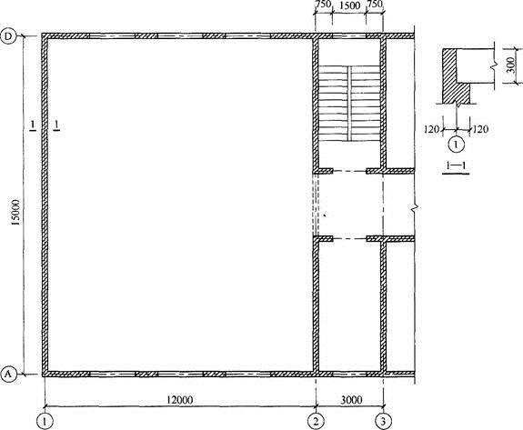
方案初期,某四层砌体结构房屋顶层局部平面布置图如图所示,层高均为3.6m。墙体采用MU10级烧结多孔砖、M5级混合砂浆砌筑。墙厚为240mm。屋面板为预制预应力空心板上浇钢筋混凝土叠合层,屋面板总厚度为300mm,简支在①轴和②轴墙体上,支承长度为120mm。屋面永久荷载标准值为12kN/m2,活荷载标准值为0.5kN/m2。砌体施工质量控制等级为B级;抗震设防烈度为7度,设计基本地震加速度为0.1g。[2013年真题]

4.假定,将①轴墙体设计为砖砌体和钢筋混凝土构造柱组成的组合墙。试问,①轴墙体内最少应设置的构造柱数量,与下列何项数值最为接近?( )
提示:按《砌体结构设计规范》(GB 50003—2011)作答。
根据《砌体结构设计规范》(GB 50003—2011)第8.2.9第3款规定,砖砌体和钢筋混凝土构造柱组成的组合墙,应在纵横墙交接处、墙端部设置构造柱,其间距不宜大于4m。①轴墙长15m,端部设置2个构造柱,中间至少设置3个构造柱,总的构造柱数量至少为5个,才能满足第8.2.9第3款的构造要求。由此可知,C项数值最为接近。










