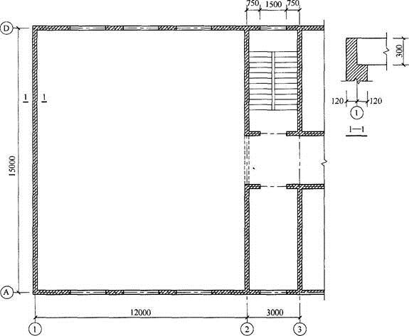
方案初期,某四层砌体结构房屋顶层局部平面布置图如图所示,层高均为3.6m。墙体采用MU10级烧结多孔砖、M5级混合砂浆砌筑。墙厚为240mm。屋面板为预制预应力空心板上浇钢筋混凝土叠合层,屋面板总厚度为300mm,简支在①轴和②轴墙体上,支承长度为120mm。屋面永久荷载标准值为12kN/m2,活荷载标准值为0.5kN/m2。砌体施工质量控制等级为B级;抗震设防烈度为7度,设计基本地震加速度为0.1g。[2013年真题]

3.试问,为提高顶层①轴墙体上端的受压承载力,下列哪种方法不可行?( )
①轴墙体上端仅承受屋面板传来的竖向荷载,根据《砌体结构设计规范》(GB 50003—2011)第4.2.5条第3款规定,板端支承压力作用点到墙内边的距离为:0.4a0=0.4×120=48mm,距墙中心线的距离为:120-48=72mm。
A项,根据第8.1.1条第1款规定,偏心距e/h=0.3>0.17,不宜采用网状配筋砌体,不可行;
B项,根据第8.2.4条规定,砖砌体和钢筋砂浆面层的组合砌体可大幅度提高偏心受压构件的承载力,可行;
C项,增加屋面板的支承长度可减小偏心距,提高承载力影响系数Ψ值,可行;
D项,提高砌筑砂浆的强度等级可提高砌体的抗压强度设计值,可行。










