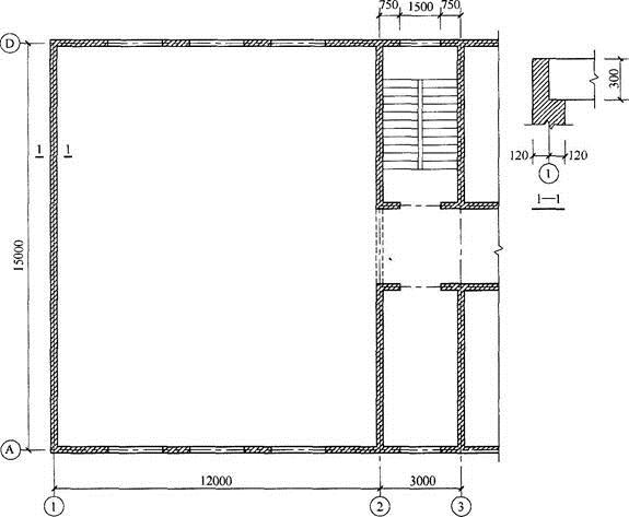
方案初期,某四层砌体结构房屋顶层局部平面布置图如图所示,层高均为3.6m。墙体采用MU10级烧结多孔砖、M5级混合砂浆砌筑。墙厚为240mm。屋面板为预制预应力空心板上浇钢筋混凝土叠合层,屋面板总厚度为300mm,简支在①轴和②轴墙体上,支承长度为120mm。屋面永久荷载标准值为12kN/m2,活荷载标准值为0.5kN/m2。砌体施工质量控制等级为B级;抗震设防烈度为7度,设计基本地震加速度为0.1g。[2013年真题]

2.试问,顶层①轴每延米墙体下端受压承载力设计值N(kN/m),与下列何项数值最为接近?( )
提示:不考虑下层弯矩对本层墙体的影响,不考虑风荷载。
根据《砌体结构设计规范》(GB 50003—2011)第4.2.1条表4.2.1可知,本房屋的静力计算方案为刚性方案;根据第5.1.1条规定,砌体的受压承载力计算公式为:

根据第3.2.1条表3.2.1-1可知,MU10烧结多孔砖、M5混合砂浆的抗压强度设计值f=1.50MPa;
根据第5.1.2条式(5.1.2-1)计算,墙体的高厚比为:γβH0/h=1.0×3600/240=15;根据第4.2.5条第2款规定,墙体可视作两端铰支的竖向构件,其底部的偏心距应视为0。根据高厚比和e/h,查附录D表D.0.1-1得:稳定系数Ψ=0.745。
故①轴每延米墙体下端受压载力设计值为:N=ΨfA=0.745×1.5×1000×240=268kN。
由此可知,D项数值最为接近。










