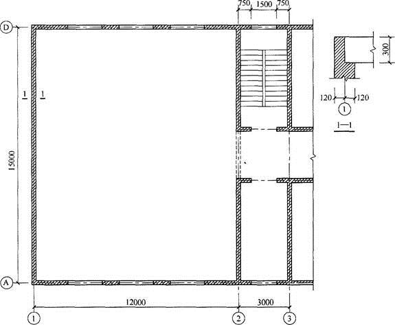
方案初期,某四层砌体结构房屋顶层局部平面布置图如图所示,层高均为3.6m。墙体采用MU10级烧结多孔砖、M5级混合砂浆砌筑。墙厚为240mm。屋面板为预制预应力空心板上浇钢筋混凝土叠合层,屋面板总厚度为300mm,简支在①轴和②轴墙体上,支承长度为120mm。屋面永久荷载标准值为12kN/m2,活荷载标准值为0.5kN/m2。砌体施工质量控制等级为B级;抗震设防烈度为7度,设计基本地震加速度为0.1g。[2013年真题]

1.试问,顶层①轴每延米墙体的局部受压承载力设计值Nl(kN/m),与下列何项数值最为接近?( )
提示:多孔砖砌体孔洞未灌实。
根据《砌体结构设计规范》(GB 50003—2011)第5.2.1条规定,砌体截面受局部均匀压力的承载力计算公式为:Nl≤γfAl。式中,γ为截面塑性发展系数,根据第5.2.2条第2款第6项规定,取γ=1.0;f为砂浆抗压强度设计值,根据第3.2.1条表3.2.1-1可知,MU10烧结多孔砖、M5混合砂浆的抗压强度设计值f=1.50MPa。故每延米墙体的局部受压承载力设计值为:N=γfAl=1.0×1.5×1000×120=180kN/m,由此可知,A项数值最为接近。










