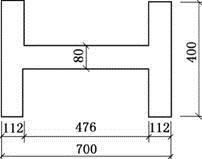
一钢筋混凝土单层工业厂房边柱,下柱为工字形截面,截面尺寸如图所示,下柱高为7.2m,柱截面控制内力M=592kN·m,N=467kN,混凝土强度等级为C30,钢筋用HRB335级。

2.采用对称配筋,钢筋截面面积As=As′最接近于( )mm2。
根据《混凝土结构设计规范》(GB 50010—2010)第6.2.17条式(6.2.17-1)计算,受压区高度为:


属大偏心受压;轴向压力作用点到受拉钢筋合力点的距离为e=ei+h/2-as=1601mm,故采用对称配筋时,钢筋截面面积为:

由此可知,A项数值最为接近。










