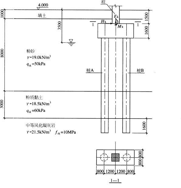
某框架结构办公楼边柱的截面尺寸为800mm×800mm,采用泥浆护钻孔壁灌注桩两桩承台独立基础。荷载效应标准组合时,作用于基础承台顶面的竖向力Fk=5800kN,水平力Hk=200kN,力矩Mk=350kN·m,基础及其以上土的加权平均重度取20kN/m3,承台及柱的混凝土强度等级均为C35。抗震设防烈度7度,设计基本地震加速度值0.10g,设计地震分组第一组。钻孔灌注桩直径800mm,承台厚度1600mm,h0取1500mm。基础剖面及土层条件见图5-16。[2011年真题]
提示:①本题按《建筑桩基技术规范》(JGJ 94—2008)作答。②C35混凝土,ft=1.57N/mm2。

3.试问,地表下5.5m深处液化判别标准贯入锤击数临界值Ncr,与下列何项数值最为接近?( )
提示:按《建筑抗震设计规范》(GB 50011—2010)作答。
根据《建筑抗震设计规范》(GB 50011—2010)第4.3.4条表4.3.4可知,液化判别标准贯入锤击数临界值的大小取决于场地基本地震加速度、地震分组、砂土本身的性质、地下水位、所处深度等因素。根据式(4.3.4)计算,标准贯入锤击数临界值公式为:

地表下5.5m对应的土层为粉砂,根据式(4.3.4)关于砂土黏粒含量百分率的说明,ρc=3;根据设计基本地震加速度为0.1g,查表4.3.4可得,液化判别标准贯入锤击数基准值N0=7;地震分组为第一组时,调整系数β为0.8;

代入数据可得,标准贯入锤击数临界值为:

取7。由此可知,B项数值最为接近。










