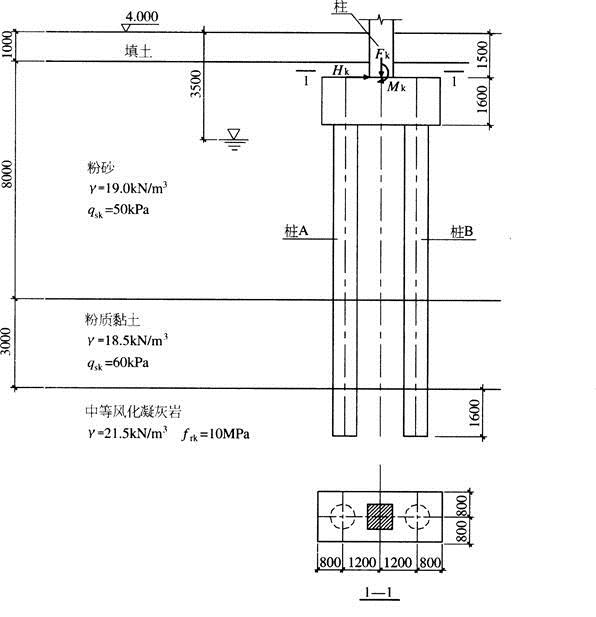
某框架结构办公楼边柱的截面尺寸为800mm×800mm,采用泥浆护钻孔壁灌注桩两桩承台独立基础。荷载效应标准组合时,作用于基础承台顶面的竖向力Fk=5800kN,水平力Hk=200kN,力矩Mk=350kN·m,基础及其以上土的加权平均重度取20kN/m3,承台及柱的混凝土强度等级均为C35。抗震设防烈度7度,设计基本地震加速度值0.10g,设计地震分组第一组。钻孔灌注桩直径800mm,承台厚度1600mm,h0取1500mm。基础剖面及土层条件见图5-16。[2011年真题]
提示:①本题按《建筑桩基技术规范》(JGJ 94—2008)作答。②C35混凝土,ft=1.57N/mm2。

2.荷载效应基本组合由永久荷载控制。试问,承台正截面最大弯矩设计值(kN·m),与下列何项数值最为接近?( )
根据《建筑桩基技术规范》(JGJ 94—2008)第5.9.2条第1款规定,确定承台的正截面弯矩设计值时,桩反力不应计人承台及其上土的重量。作用于桩B的竖向力最大,按式(5.9.2-1)计算,除去承台及其上土自重后,可得:

以上计算得到的桩反力为标准值,计算承台正截面弯矩设计值时,应根据荷载效应基本组合由永久荷载控制这一条件,乘以1.35的分项系数,则最大弯矩设计值为:

由此可知,C项数值最为接近。










