当前位置:首页 → 建筑工程 → 一级造价师 → 建设工程技术与计量(土建)->关于基础埋深和地下室防潮说法正确的是()。
关于基础埋深和地下室防潮说法正确的是( )。
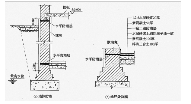
对于砖墙,其构造要求是:墙体必须采用水泥砂浆砌筑,灰缝要饱满;在墙外侧设垂直防潮层。其具体做法是:在墙体外表面先抹一层20mm厚的水泥砂浆找平层,再涂一道冷底子油和两道热沥青,然后在防潮层外侧回填低渗透土壤,并逐层夯实,土层宽500mm左右,以防地面雨水或其他地表水的影响。

建设工程项目采用Partnering模式的特点有( )。
下列工程中,属于分部工程的是( )
根据《招标投标法实施条例》,依法必须进行招标的项目可以不进行招标的情形是()。
根据《工程造价咨询企业管理办法》,工程造价咨询企业可被处1万元以上3万元以下罚款的情形是( )。
下列项目开工建设准备工作中,在办理工程质量监督手续之后才能进行的工作是()。
根据《建筑法》,获取施工许可证后因故不能按期开工的,建设单位应当申请延期,延期的规定是( )。
判断合同是否成立的依据是( )。
关于《国务院关于投资体制改革的决定》,特别重大的政府投资项目应实行( )制度。
根据《价格法》,政府可依据有关商品或者服务的社会平均成本和市场供求状况、国民经济与社会发展要求以及社会承受能力,实行合理的( )。
根据我国《价格法》,制定关系群众切身利益的公用事业价格、公益性服务价格、自然垄断经营的商品价格时,应当建立( )制度。